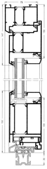
Royal S 70 AK:
Profilseite
- Profile
- - Grundbautiefe 75mm
- - Blendrahmen und Flügel aussen flächenbündig
- - Flügel innen aufschlagend
- - Konturbegrenzung kantig
- - Thermisch getrennte Konstruktion
- - Rahmenmaterialgruppe 2.1
- - Sockelprofil im Fußpunkt
- - 3 Anschlagdichtungen seitlich und oben
- - Flügelanschlag am Schwellenprofil mit 2 Anschlagdichtungen, in der Höhe verstellbar
- - Glasleisten abgeschrägt und Gehrungseckstücken
- Beschlag:
- - 3 zweiteilige, einstellbare Türbänder
- - zweitouriges Riegel-Fallenschloß mit Wechsel und 2 Massivriegel (3-fach-Verriegelung)
- - Schloßstulp und Schließplatte verzinkt
- - Profilzylinder mit drei Schlüssel, mit Not- und Gefahrenfunktion
- - Sicherheits-Zierringrosette außen
- - Innen-Türdrücker incl. Rosette (oval)
- - Profilzylinderrosette innen
- Öffnungsarten:
- - 1- und 2-flügelige Anschlagtüren, nur nach innen öffnend
- - Oberlichter und Seitenteile sind möglich
- Oberflächen und Farben:
- - Pulverbeschichtet in RAL 9016 weiss (Dichtung schwarz)
Ausführungsänderungen, Zusatzausstattung oder weitere Farbgestaltung möglich. Weitere Details und Preise auf Anfrage.